- Woonoppervlakte
- Circa 64 m²
- Inhoud
- Circa 205 m³
- Bouwjaar
- Gebouwd in 1929
- Aantal kamers
- 4 kamers (2 slaapkamers)
Wonen op het water met vrijheid, uitzicht en een landelijke ligging! Wie wil dat nou niet?
Gelegen aan een rustige weg met vrij zicht op een zijarm van de Waal geniet u hier dagelijks van watervogels, voorbijglijdende boten en een groene omgeving. Rustig gelegen en goed bereikbaar.
Wat heeft deze woonboot u allemaal te bieden!
De karaktervolle woonboot (oorspronkelijk vrachtschip type Groninger Aak) met een ruim loopbordes rondom, ankerpalen en loopbrug inclusief bijbehorende dekschuit en het gebruik van de vrijstaande garage met parkeerplaats.
De woonboot bovendeks bestaande uit het voordek, het dekhuis met de woonkamer met open keuken met prachtig uitzicht op het water. De indeling is praktisch en sfeervol, met twee slaapkamers en een verzorgde badkamer.
Onderdeks de voorpiek en de bergruimte met open achterpiek.
Naastgelegen de bijbehorende stalen dekschuit met een heerlijk terrasgedeelte en de voormalige stuurhut voor multifunctioneel gebruik.
Rondom de woonboot het loopbordes waar u ook heerlijk buiten kunt zitten en genieten van het uitzicht over het water.
Daarnaast beschikt het object over een vrijstaande garage met elektra, water en 3-fase aansluiting, ideaal voor opslag, hobbyruimte of als werkplek.
De woonboot ligt op een rustige, landelijke plek met alle dagelijkse voorzieningen binnen handbereik in Beneden-Leeuwen. Dit dorp biedt alles wat u nodig heeft, van winkels en supermarkten tot horeca en scholen.
De bereikbaarheid is uitstekend: via de N322 bent u zo op de A50 of A73 richting Nijmegen, en via de N323 rijdt u eenvoudig naar de A15 richting Tiel en Utrecht. Ook de omgeving heeft veel te bieden. Met het pontje bij Druten bent u snel aan de overkant, ideaal om per fiets de Betuwe te verkennen. Richting het zuiden ligt recreatiegebied De Gouden Ham bij Maasbommel, perfect voor een dagje varen, zwemmen of ontspannen aan het water.
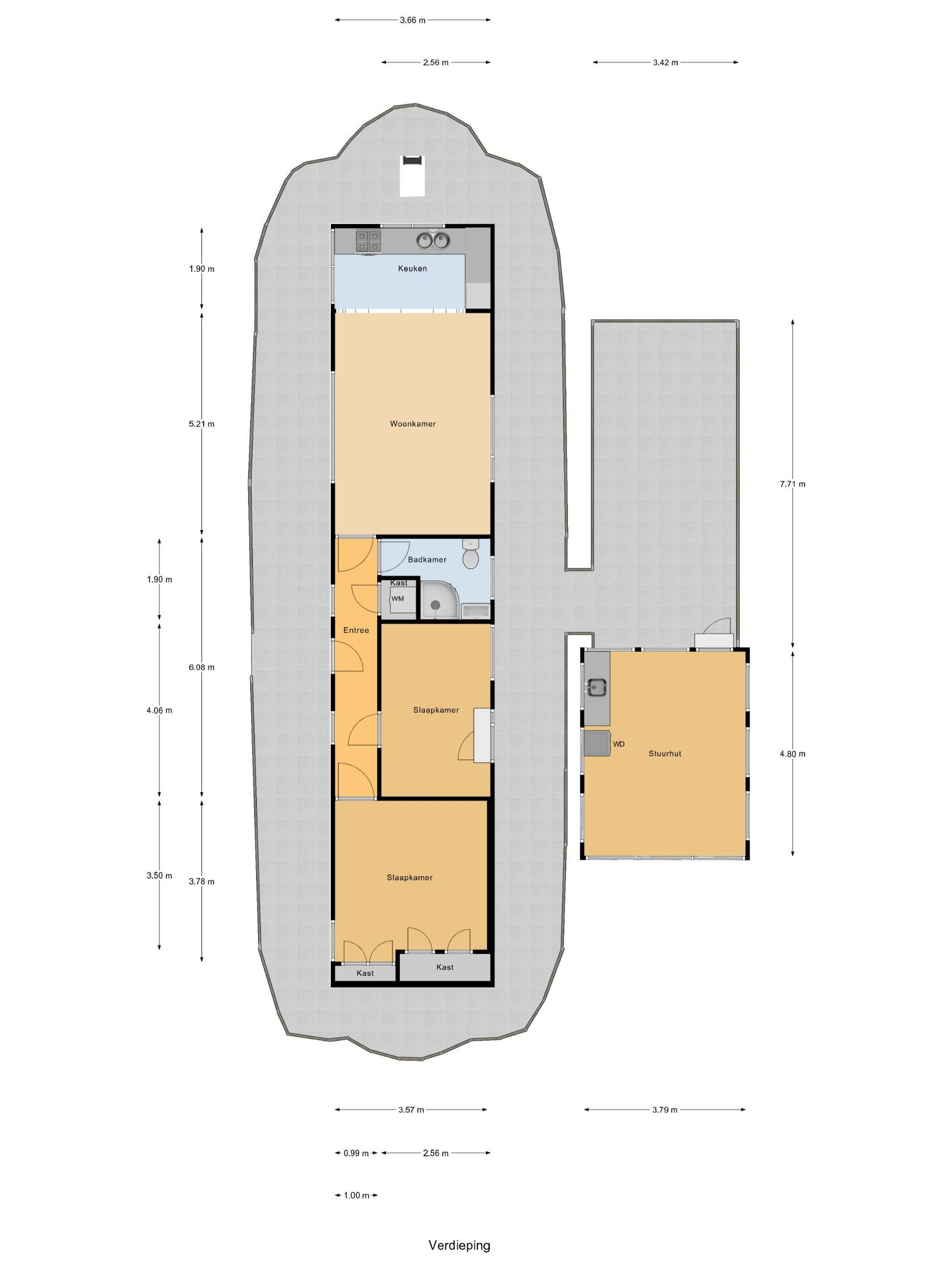
Indeling:
Entree, gang met meterkast, aan het linker uiteinde de woonkamer met aan beide zijden een raampartij. Middels een open toog de keuken met L-vormig aanrecht met o.a. afzuigkap, 4-pits elektrische kookplaat, dubbele ronde wasbak, koel-vrieskast, afwasmachine en diverse kasten, de badkamer met toilet, wastafel, douchecabine en designradiator, kast met de wasmachine en elektrische boiler. Een slaapkamer (± 4.06 x 2.56 m) met toegangsdeur tot de dekschuit en een voorwand voorzien van tegeltableau. Aan het rechter uiteinde van de gang is de hoofdslaapkamer (± 3.78 x 3.57 m) gelegen met ingebouwde hang- en legkasten met tegeltableau.
Onderdeks deels in gebruik als bergplaats, bij toegangsluik (in de gang) belegd met houten platen, stalen bakken aan SB-zijde met staalresten als contragewicht voor de toegangsbrug,
stahoogte ± 0,90 m.
Dekschuit:
Naast de woonboot ligt aan de waterzijde (SB-zijde) een bijbehorende stalen geklonken dekschuit afgemeerd met 2 stalen ankerpalen en voorzien van een aluminium klapbare verbindingsbrug. Deze dekschuit (lengte ± 18 m ) doet dienst als golfbreker maar niet in de laatste plaats als een heerlijke terrasboot waar u heerlijk buiten kunt zitten, om te genieten van het uitzicht op het water, de omgeving en de rust.
Aan de achterzijde voorzien van een lantaarnpaal, het voorschip heeft een ruim dek ingedeeld als tuin, rondom voorzien van een stalen hekwerk. Op het voorschip staat een stalen voormalig stuurhuis voorzien van een keukenblokje, een unieke veelzijdige ruimte die perfect kan dienen als werkplek, atelier, logeerkamer of rustige zitplek aan het water, rondom geheel voorzien van enkelglas ramen. Voorheen is hier een vergunning afgegeven voor een B&B. De onderdekse ruimte wordt gebruikt als bergplaats en aan de voorzijde liggen stenen als contraballast. Het voor- en achterdek is elk voorzien van 2 kikkers.
Bijgebouwen:
Het gebruik van de vrijstaande garage met daarin de meterkast met 3 fase aansluiting en watermeter, voorzien van houten kozijnen met plexiglas, klapdeur, elektra en water met warmtelint om bevriezing te voorkomen. De garage staat op grond van het waterschap, maar is voor gebruik bij de ligplaats.
Overige informatie:
- Bouwjaar ±1929, werf Gebr. Schuitema te Wildervank
- Energielabel: G
- Kozijnen: Kunststof met draai-kiep ramen
- Beglazing: Geheel voorzien van HR glas. De terrasboot heeft enkelglas.
- Cv-installatie met Rapido olie gestookte kachel met automatische Mercedöl brander (in voorpiek).
- Brandstoftank (ca. 1000 l) in voorpiek.
- Warm water via Daalderop 220 V boiler (80 l inhoud)
- Rioolaansluiting met Homa elektrische opvoerpomp (in voorpiek) (riolering slang in 2022 vernieuwd)
- 220 V walaansluiting via loopbrug, tussenmeterkast in de gang en meterkast in de garage.
- Wateraansluiting in de garage, met warmtelint tegen bevriezing in de winter.
- Casco: staal, voor zover zichtbaar in goede staat.
- De dekschuit fungeert als golfbreker.
- Voorzieningen: Schotelantenne, vliegenhorren, glasvezel ligt aan de dijk, momenteel internet/wifi via een dongel.
- Woonkamer: Houten wanden, mdf plafond en eiken vloer
- Keuken: Bouwjaar 1980
- Vloeren: eikenvloer.
- Dakbedekking: Staal + bituum
- Onderdeks: toegang bij voordeur
- Stahoogte ca. 2,20 m, onderdeks ca. 0,90 m
- Parkeergelegenheid: Bij de garage
- Ligvergunning wordt met de verkoop overgedragen.
- In de koopovereenkomst zal o.a. de asbestclausule en ouderdomsclausule opgenomen worden.
- Projectnotaris Bruggink en van Beek te Wijchen Lees de volledige omschrijving
Overdracht
- Vraagprijs
- € 325.000 k.k.
- Status
- Beschikbaar
- Aanvaarding
- In overleg
Bouw
- Object type
- Woonboot, vrijstaande woning
- Soort bouw
- Bestaande bouw
- Bouwjaar
- 1929
- Soort dak
- Plat dak
Oppervlakte en inhoud
- Woonoppervlakte
- 64 m²
- Inhoud
- 205 m³
- Externe bergruimte
- 18 m²
- Gebouwgeb. buitenruimte
- 109 m²
Indeling
- Aantal kamers
- 4 kamers (2 slaapkamers)
- Aantal badkamers
- 1 badkamer
- Badkamervoorzieningen
- Douche, toilet, en wastafel
- Aantal woonlagen
- 1 woonlaag
Energie
- Energielabel
- G
- Energielabel registratie
- 25-05-2025
- Isolatie
- Hr-glas
- Warm water
- Elektrische boiler
Buitenruimte
- Ligging
- Aan rustige weg, aan water en vrij uitzicht
- Tuin
- Zonneterras
- ligging tuin
- Gelegen op het noordoosten
Garage
- Soort garage
- Vrijstaande stenen garage
- Capaciteit
- 1 auto
- Voorzieningen
- Elektra
Parkeergelegenheid
- Soort parkeergelegenheid
- Op eigen terrein
Energieverbruik in Beneden-Leeuwen
Energielabel deze woning
Energielabel G
Publicatie energielabel: 25-05-2025
Stroomverbruik per jaar
(Gemiddelde vrijstaande woning in Beneden-Leeuwen)
Gasverbruik per jaar
(Gemiddelde vrijstaande woning in Beneden-Leeuwen)
* Cijfers zijn afkomstig van het CBS en bedoeld als indicatie en kunnen verschillen voor deze woning
Indicatie hypotheeklasten
Eigen inleg:
Spaargeld / overwaarde
Rente:
Laagste 10-jaars rente
Laagste 10-jaars rente
2,78% - Centraal Beheer Groen... - NHG
3,04% - Centraal Beheer Groen... - 80%
Laagste 20-jaars rente
3,29% - Centraal Beheer Groen... - NHG
3,52% - Centraal Beheer Groen... - 80%
Laagste 30-jaars rente
3,41% - Centraal Beheer Groen... - NHG
3,7% - Argenta Groen Hypotheek... - 80%
Hypotheek:
Bruto maandlasten: € 0 p/m
Netto maandlasten: € 0 p/m
Hoe berekenen we dit?
Het rentepercentage is gebaseerd op de laagste 10 jaars vaste rente voor één hypotheekdeel. De vermelde rente (2.78% met NHG) is gecontroleerd op 27-02-2026. Deze berekening is gebaseerd op een annuïteitenhypotheek die volledig wordt afgelost, waarbij de maandlasten gedurende de gehele looptijd gelijk blijven. De werkelijke rente en netto maandlasten kunnen variëren, afhankelijk van uw persoonlijke situatie en de hypotheekverstrekker. Raadpleeg een financieel adviseur voor een nauwkeurige berekening en advies. Aan deze berekening kunnen geen rechten worden ontleend; het dient enkel als indicatie.
Documentatie
Kadastrale kaart
Leefomgeving
WOZ waarderapport
BAG uittreksel
Plattegronden PDF
Brochure
Bezichtiging
Waardebepaling
Zoekopdracht
Alles downloaden
Zonnegrenzen bekijken
Inwoners in Beneden-Leeuwen
Cijfers voor postcodegebied 6658
- Totaal aantal inwoners
- 6700 inwoners
- Mannen
- 49%
- Vrouwen
- 51%
Inwoners in Beneden-Leeuwen
Cijfers voor postcodegebied 6658
- tot 15 jaar
- 14%
- 15 tot 25 jaar
- 10%
- 25 tot 35 jaar
- 22%
- 45 tot 65 jaar
- 30%
- 65 en ouder
- 25%
Huishoudens in Beneden-Leeuwen
Cijfers voor postcodegebied 6658
- Eenpersoons zonder kinderen
- 32%
- Meerpersoons zonder kinderen
- 36%
- Huishoudens zonder kinderen
- 68%
Huishoudens in Beneden-Leeuwen
Cijfers voor postcodegebied 6658
- Huishoudens met één kind
- 6%
- Huishoudens met meerdere kinderen
- 27%
- Huishoudens met kinderen
- 33%
Woningen in Beneden-Leeuwen
Cijfers voor postcodegebied 6658
- Woningen voor 1945
- 10%
- Woningen tussen 1945 en 1965
- 15%
- Woningen tussen 1965 en 1975
- 17%
- Woningen tussen 1975 en 1985
- 15%
- Woningen tussen 1985 en 1995
- 16%
Woningen in Beneden-Leeuwen
Cijfers voor postcodegebied 6658
- Woningen tussen 1995 en 2005
- 8%
- Woningen tussen 2005 en 2015
- 11%
- Woningen na 2015
- 9%
- Huurwoningen
- 30%
- Koopwoningen
- 60%
Overige in Beneden-Leeuwen
Cijfers voor postcodegebied 6658
- Gemiddelde WOZ waarde
- € 256.000,-
- Personen onder de 65 met uitkering
- Niet beschikbaar
Overige in Beneden-Leeuwen
Cijfers voor postcodegebied 6658
- Adressen per km²
- 768
- Stedelijkheid (schaal 1 op 5)
- 40%
HW Makelaardij Wijchen
Indien u vragen heeft of u wilt een bezichtiging inplannen, dan kunt u gebruik maken van het formulier hiernaast. Er zal daarna op korte termijn contact met u worden opgenomen.
Contact opnemen
Over HW Makelaardij
HW Makelaardij staat garant voor een enthousiaste benadering, transparante communicatie en heldere afspraken. U kunt rekenen op onze persoonlijke aandacht en een actieve, deskundige begeleiding. Als u op zoek bent naar een makelaar die uw belangen vooropstelt, bent u bij ons aan het juiste adres. HW Makelaardij werkt snel en professioneel!
Onze sterke punten zijn:
- Dankzij onze kleinschalige portefeuille kunnen wij u volop persoonlijke aandacht en maatwerkadvies bieden.
- Wij bieden scherpe courtagetarieven en een aantrekkelijk uurtarief.
- U kunt rekenen op onze intensieve begeleiding gedurende het hele aan- en verkooptraject.
- Met onze uitgebreide (juridische) kennis houden wij u volledig geïnformeerd over alle aspecten van het aan- en verkopen van een woning.
- Wij bieden een uitgebreid scala aan diensten.
Of u nu een huis wilt kopen, verkopen of de actuele marktwaarde van uw woning wilt weten, wij nodigen u van harte uit voor een vrijblijvend gesprek bij ons op kantoor in Balgoij (Wijchen) of bij u thuis.
Nieuwste reviews
-
Ooievaarshorst 6
Hele fijne makelaar altijd behulpzaam als je vragen hebt of ergens mee zit is er echt voor de verkoper gewoon een topper
-
L Gr
Beoordeeld met een 5
-
Schaijksestraat 13
Mike combineert professionaliteit met een persoonlijke, informele touch. Altijd duidelijk, betrokken en met een glimlach. Ons huis is dankzi...